1. 十大禁用APP黄台大全下载网站,十大免费污软件下载,十大免费看黄软件下载,十大黄色网站免费下载

      
      
      联系十大禁用APP黄台大全下载网站more+
      河南十大禁用APP黄台大全下载网站管道科技有限公司
      地址:巩义市西村镇管道产业园
      联系电话:15515887365​(同微)
      联系时可以说明是从【十大禁用APP黄台大全下载网站官网】来的,感谢您的信任!
      固话:0371-64109916
      波纹补偿器您当前所在的位置:首页>>产品世界>>波纹补偿器浏览正文

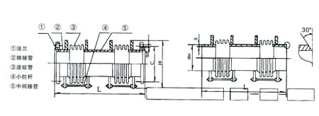
      复式拉杆横向波纹补偿器_小拉杆补偿器生产厂家

      更多
      更新时间:2013-10-23 08:22:27 来源:本站 点击数:
       拉杆横向型波纹补偿器 

       


        小拉杆横向型波纹补偿器使用说明: 小拉杆横向波纹补偿器除可以补偿弯曲管道的横向位移和角位移,同时也可以补偿轴向位移。我公司是波纹补偿器、不锈钢金属软管、金属软管、非金属补偿器、橡胶软接头、套筒补偿器、十大免费污软件下载的专业生产制造商,是国内同类产品的大型骨干企业和制造基地。小拉杆横向波纹补偿器具有尺寸准确、表面整洁无创伤、产品结构紧凑、补偿量大、无泄漏、耐腐蚀、寿命长,便于安装、产品质量可靠等优点。同时我公司也可根据用户工作环境、条件以及疲劳破坏次数,为用户研制其它类型和用途的波纹补偿器。

       
       

      
      主推产品:十大免费污软件下载、柔性十大免费污软件下载、07FS02防护密闭套管、伸缩器、伸缩接头、传力接头
      十大禁用APP黄台大全下载网站管道 备案:豫ICP备78032263号-5
      地址:巩义市西村镇管道产业园   联系电话:15515887365​(同微) 联系人:李经理
      联系时可以说明是从【十大禁用APP黄台大全下载网站官网】来的,感谢您的信任! 站点地图
      网站地图